
CASA H-C
VIVIENDA INDIVIDUAL
Barrio La Horqueta de Echeverría - Canning - Pcia. Bs. As.
obra terminada
















DESCRIPCION
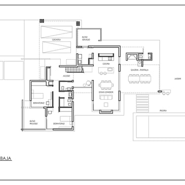
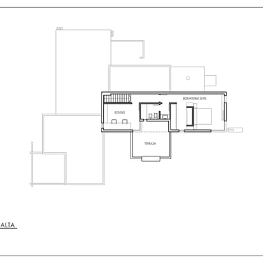
FUNCION: "Una casa que nos represente"..... fue una de las primeras consignas mencionadas por los propietarios. Luego de sucesivas charlas concluímos que esa casa debía ser simple, clara, calma, ordenada, precisa... La misma se divide en una planta baja de uso social abierta al contrafrente con expansiones semicubiertas, con un espacio flexible al frente que pueda oficiar de escritorio y eventualmente habitación de huéspedes; y una planta alta de uso privado con cuatro habitaciones. El acceso y el espacio de doble altura que contiene la escalera articulan las mismas. Completan el planteo una doble cochera, y un jardín al frente que aporta intimidad a la planta baja.
FORMA: La forma parte de una volumetría general de carácter macizo, que se articula dando respuesta al programa y genera a partir de recortes, volumetrías menores reforzadas por el uso de distintas materialidades. Este macizo principal, establece un contrapunto con dos estructuras de carácter opuesto, formadas por elementos lineales que contienen la doble cochera y el sector de parrilla, ubicados al frente y contrafrente respectivamente.
MATERIA: Para el volúmen macizo, se planteó el uso de ladrillo visto, revestimiento texturado, madera y detalles en hormigón visto. En las estructuras complementarias (cochera-parrilla) predominasn la perfilería de hierro y la madera. En los interiores, pisos de porcellanato y enlucido de yeso en paredes dan unidad a la propuesta, dejando espacio para detalles en madera y hormigón visto. En resúmen, una paleta de materiales nobles que establezcan diálogo con el entorno verde circundante.



CASA B-F
VIVIENDA INDIVIDUAL
Barrio El Lauquén - San Vicente - Pcia. Bs. As.
proyecto (inicio de obra marzo 2026)






DESCRIPCION
FUNCION: Las necesidades funcionales que dan motivo a la ampliación de esta vivienda, responden principalmente a la incorporación en la planta alta de una habitaciòn adicional para una de las tres hijas del matrimonio. Como consecuencia de esta necesidad, y de la respuesta a ella, se suceden otras dos intervenciones consistentes en la ampliación del dormitorio principal y la extensión de la sala de estar de planta baja, lo que permite disponer de una terraza privada como expansión de esta habitación principal.
FORMA: La nueva volumetría se trabajó como una pieza independiente de lenguaje contemporáneo. En ambas plantas, dos elementos lineales conformados por canaletones de hormigón que rematan en sus extremos con paños vidriados, cumplen la función de separar esta nueva pieza de la construcción existente, además de recoger y canalizar el agua de lluvia de los techos .inclinados. La galería, que no formaba parte de la construcción original, es absorbida por la nueva volumetría. La diferenciación en el lenguaje de ésta, respecto a la vivienda original, prefende dejar de manifiesto la temporalidad de cada intervención.
MATERIA: La propuesta se trabajó con tres materiales principales. En planta alta, el mayor protagonismo lo asume el volúmen revestido con placas de cemento acanalado, que por color y textura se diferencia del resto del conjunto. El espacio semicubierto de la terraza, se materializa con un tratamiento de mejorado del hormigón visto estructural. Y por último, un revestimiento texturado de color claro cumple el rol de elemento integrador entre la ampliación y la obra existente.



CASA M-W
VIVIENDA INDIVIDUAL
Barrio Terralagos - Canning - Pcia. Bs. As.
proyecto (inicio de obra marzo 2026)
en conjunto con Hugo Russo Arquitectura









DESCRIPCION
FUNCION: El programa responde a las necesidades de un matrimonio con dos hijas ya independizadas que eventualmente puedan pasar la noche en la vivienda. Así, se desarrolla en la planta baja un área social con expansiones hacia el contrafrente, a la que se suma una habitación de huéspuedes que permite tambien su uso como estudio. En planta alta, el área privada cuenta con dos habitaciones principales con baño suite compartido para el matrimonio; una segunda habitación de huéspedes y un atelier de trabajo. Los servicios se distribuyen en ambas plantas según las necesidades.
FORMA: La vivienda se plantea a partir de la búsqueda de que la misma se "descubra" a medida que nos acercamos a ella; replicando una condición que es propia del terreno, por su ubicaión dentro del emprendimiento. La forma general de la vivienda acompaña las características de éste. Dos tramas paralelas a cada uno de los ejes divisorios, más una tercera rama intermedia, generan una volumefría que, cerrada hacia el frente, se despliega hacia en contrafrente en busca del mejor asoleamiento y de las mejores visuales.
MATERIA: En el exterior, un macizo blanco que se articula en función de las tramas mencionadas, es el protagonista material principal de la propuesta. Tres piezas revestidas en WPC y unos pocos elementos revestidos en piedra, generan un contraste de textura y color que enfatiza la articulación volumétrica. En los espacios interiores predominas los materales detonos claros y cálidos, mientras que un revestimiento de madera quemada aplicado a algunas superficies, aporta una textura y tonalidad contrastante que genera un contrapunto con la ambientación general.



C.A.C.I.
COLEGIO ARGENTINO DE CARDIOANGIOLOGOS INTERVENCIONISTAS
ADMINISTRACION Y FORMACION PROFESIONAL
Ciudad Autónoma de Buenos Aires
obra terminada










DESCRIPCION
FUNCION: El Centro de Simulación tiene por objetivo la capacitación de profesionales en lo referido a intervenciones de cirugía cardiovascular. A tal efecto, se debía dar respuesta a un programa que tenía dicha función como prioritaria, complementada con espacios que permitieran el intercambio entre profesionales. A su vez, un área administrativa de apoyo completaba los requerimientos principales.
FORMA: La intervención abarcó un semipiso de 180 m2 de planta libre dispuesto en forma longitudinal, con un núcleo de servicios consolidado que fue reacondicionado manteniendo su ubicación original. El programa se dividió en dos zonas bien diferenciadas. Las salas de prácticas se ubicaron en el sector posterior, en torno a un amplio espacio de espera y reunión eventual; y hacia el frente, se ubicaron las funciones administrativas junto a una sala de reuniones. La recepción, levemente desplazada hacia esta área, actúa como elemento articulador de ambos sectores.
MATERIA: La obra fue ejecutada utilizando una paleta acotada de materiales. El piso de porcellanato gris actúa como elemento unificador. Las tabiquerías fueron resueltas con paños opacos de durlock y transparentes de carpintería de aluminio y vidrio, acordes a las necesidades de los distintos espacios. Los colores elegidos fueron neutros, con alteraciones puntuales en tonos de rojo; color presente en la identidad del C.A.C.I.



CASA SEG-1
VIVIENDA INDIVIDUAL
Barrio San Eliseo Golf - Canning - Pcia. Bs As.
proyecto para venta con terreno






DESCRIPCION
FUNCION: La propuesta funcional tiene como punto de partida una configuracion base, que puede ser adaptada según las necesidades del futuro usuario. El área social conformada por espacios cubiertos y semicubiertos actúa como punto de reunión familiar. Las dos áreas privadas dispuestas en diferentes plantas, permiten distintas conformaciones. Inicialmente se plantean en planta baja las habitaciones para hijos y en planta alta la habitación y el estudio para padres; pero el esquema permite una amplia versatilidad sin alterar la propuesta general.
FORMA: El conjunto está conformado por dos volumetrías cerradas en si mismas, que definen las áreas privadas; más una tercera pieza conteniendo las áreas sociales, que se despliega con mayor fluidez entre espacios interiores y exteriores. Una placa horizontal apoyada en dos grupos de columnas define el área de estacionamiento. La diferenciación material refuerza la independencia de cada sector.
MATERIA: Las áreas privadas se materializan como dos cajas terminadas con revestimiento texturado color blanco tiza. El perímetro del área social está conformado por mampostería de ladrillo visto y revestimiento de WPC símil madera, del mismo tono que las carpinterías exteriores. Las columnas y la losa que definen la cochera son de hormigón visto, al igual que algunos otros elementos presentes en el conjunto.



CASA A-M
VIVIENDA INDIVIDUAL
Témperley - Pcia. Bs. As.
proyecto (inicio de obra año 2026)







DESCRIPCION
FUNCION: Las necesidades funcionales que dan motivo a la ampliación de esta vivienda, responden a diferentes intereses. Disponer de un espacio para ocio y reuniones familiares, materializados por un quincho y una pequeña piscina ubicados en el actual patio; e incorporar en una planta superior, dos oficinas para uso independiente de los propietarios
FORMA: La propuesta se trabajó con tres elementos diferenciados. El volúmen destinado a quincho se separa de la vivienda original y se mimetiza con lo existente.Este conjunto, de caracter sobrio, actúa como la base sobre la que destacan las dos piezas protagonistas de la propuesta. Estas dos piezas, conforman el espacio destinado a trabajo. La primera, se materializa mediante una caja metálica que destaca por oposición, de los dos volúmenes de planta baja sobre los que apoya generando un espacio semicubierto de vinculación entre éstos. La escalera de acceso a planta alta es la segunda pieza; la que destaca en el conjunto por morfolog{ia y color.
MATERIA: La planta baja se plantea como una construcción tradiciones con mampostería terminada con revestimiento texturado, el cual se replica en la vivienda existente para unificar el conjunto. La planta alta en cambio, se propone como un volúmen ejecutado con sistema de construcción en seco, terminado en todos sus cerramientos con chapa acanalada color negro; y junto a la escalera también metálica, acentúan su contraposición con la planta baja.



CASA M-S
VIVIENDA INDIVIDUAL
Banfield - Pcia. Bs. As.
obra terminada










DESCRIPCION
FUNCION: A partir de una pequeña vivienda existente en planta baja ocupada por la familia, se elaboró un programa de ampliación por etapas que consistió en una primera ampliación en planta alta para las áreas privadas, una segunda intervención para transformar un espacio semicubierto en cochera/quincho, y por último ya con estas dos áreas utilizables, la reforma total de la planta baja para albergar los espacios públicos de la casa.
FORMA: El proyecto plantea la conformación de una caja de dos niveles como volumen principal de la casa, con una serie de recortes en planta baja que conforman el acceso principal y desmaterializan la esquina. El volumen bajo anexo contenedor de la cochera/quincho, ve acentuada su diferenciación del cuerpo principal mediante el uso del color en la fachada. La ampliación de un patio interno aporta una generosa expansión descubierta.
MATERIA: En el interior, se utilizaron materiales de fácil mantenimiento. Porcellanatos y cerámicos cubren la totalidad de los pisos de la vivienda. La fachada se resolvió con revestimiento texturado, donde el plano rehundido unifica su color con las rejas, generando un contínuo donde se alternan llenos y vacíos. El revestimiento de piedra de uno de los muros de la fachada, se replica en espacios interiores y en el patio, como presencia repetitiva dentro del conjunto.



CONDOMINIO T-164
VIVIENDA COLECTIVA
Banfield - Pcia. Bs. As.
proyecto para inversión







DESCRIPCION
FUNCION: El programa, surgió de los condicionantes reglamentarios que aplicaban al terreno disponible. La limitación de construir un máximo de 4 unidades de vivienda, determinó la propuesta programática de desarrollar amplias unidades de cuatro ambientes, para optimizar la cantidad máxima de superficie cubierta que el terreno admitía. Las cocheras se plantearon en el sector posterior del terreno, para dar utilidad al retiro de fondo obligatorio.
FORMA: Unas pocas pero determinantes premisas fueron las que guiaron el proceso proyectual. En primer término se decidió ubicar el área pública de las unidades en el primer piso avanzando sobre el acceso vehicular, lo que permitió una mayor amplitud y privacidad de las áreas de expansión. Las habitaciones de planta baja y el estudio del segundo piso, fueron conformados pensando diferentes configuracioens que permiten el intercambio de funciones tanto en una instancia inicial como en el desarrollo del tiempo. adaptándose a distintas conformaciones del grupo familiar.
MATERIA: Se planteó el uso de materiales nobles de escaso mantenimiento para la estructura y los cerramientos, como el hormigón y el ladrillo vistos. En cuanto a las carpinterías, son de aluminio con DVH, de medidas acotadas en P.B. para otorgar mayor privacidad, y de mayor amplitud en los pisos superiores. En 2° piso se complementan con vidrio Profilit. En los interiores, predominan los pisos de porcellanato de grandes dimensiones.



NORMANS S.R.L.
ADMINISTRACION
Témperley - Pcia. Bs. As.
obra terminada





DESCRIPCION
FUNCION: Esta obra nace de la necesidad del comitente, para quien habíamos trabajado en el año 2004, de ampliar tanto sus oficinas administrativas como el depósito de acopio de mercadería. La compra de una nueva propiedad de dimensiones mucho más generosas, permitió el diseño de un área de oficinas desarrollada integramente en planta baja ampliando la capacidad de puestos de trabajo. El depósito, protagonista por sus dimensiones, cede un espacio para una futura intervención que contempla un local comercial y una sala para organizar eventos afines a la actividad.
FORMA: La propiedad cuenta con la particularidad de tener un doble acceso por calles opuestas. El área de oficinas, se planteó sobre la calle más tranquila, y se desarrolla en torno al único patio existente. Esto genera espacios de trabajo diáfanos, tanto para las oficinas generales como para el privado y la sala de reuniones; estas dos últimas con posibilidad de unificarse. El acceso se conforma por una secuencia de espacios (descubierto - semicubierto - cubierto) que culmina en una recepción controlada, previa al ingreso a las oficinas propiamente dichas.
MATERIA: La materialidad de los espacios interiores, tiene como elementos predominantes el piso de porcellanato de grandes dimensiones que unifica todos los espacios, y una serie de revestimientos que cualifican las distintas áreas; madera con las mismas terminaciones que los muebles en las oficinas generales, travertino en el privado y la sala de reuniones, y metal en el sector de ingreso interior-exterior. En el frente, se trabajó con una composición en base a revestimientos texturados y metal, y se intervinieron las rejas existentes en el frentear lograr al mmo tiempo, mayor privacisasd y una imágen más contemporánea.



CASA B
VIVIENDA INDIVIDUAL
Lanús - Pcia. Bs. As.
obra terminada









DESCRIPCION
FUNCION: El prograna de necesidades de esta vivienda para cuatro personas, matrimonio con dos hijas, contempla espacios bastante tradicionales. Un área social de dimensiones generosas, con espacios semiintegrados; un área privada compuesta por un dormitorio en suite y dos dormitorios con baño compartido, y el sector de cocheras integrado con la zona de servicios.
FORMA: A partir de una premisa de los comitentes que consistía en que la vivienda se desarrollara en medios niveles, se planteó un espacio troncal de triple altura en sentido transversal con iluminación cenital, que proporciona un recorrida contínuo por las distintas plantas con un alto grado de luminosidad natural. El área social, a la cual se llega subiendo medio nivel desde el acceso principal o desde la cochera, es la que se integra de manera franca al espacio antes mencionado. A medida que se asciende, los espacios destinados a zonas privadas se vinculan con mayor grado de intimidad. Completa la propuesta, una generosa expansión hacia el jardín posterior.
MATERIA: La construcción, de carácter tradicional, se materializa con estructura de hormigón armado y mampostería de ladrillos huecos con terminación exterior de revestimiento texturado tanto en frente como en contrafrente. En los interiores, pisos de porcellanato en las áreas sociales, se combinan con maderas en escaleras y en los pisos de las habitaciones. En ciertos sectores del estar y del comedor principal, el revestimiento de piedra aporta la rusticidad propia de los elementos naturales, en contraste con las paredes terminadas con latex satinado de tonos neutros.



CONDOMINIO T-75
VIVIENDA COLECTIVA
Lomas de Zamora - Pcia. Bs. As.
proyecto para inversión





DESCRIPCION
FUNCION: Condominio T-75 es un complejo de baja densidad compuesto por un local comercial y tres unidades de vivienda, planteado de modo que admita a futuro una posible ampliación de unidades, pero que a su vez se manifieste como un producto terminado en esta etapa inicial. En caso de no sumar unidades en una segunda etapa, se plantea ocupar el espacio disponible con servicios comunes de apoyo.
FORMA: La intervención fue abordada tomando como referencia de implantación, tres añosos pinos que daban a la parcela de 800 m2 su carácter especial. Las construcciones, divididas en dos bloques, se alejan de planteos ortogonales y se van acomodando en el terreno acordes a la premisa mencionada. Las formas irregulares resultantes, establecen de esta manera un enriquecedor diálogo entre lo natural y lo artificial.
MATERIA: La materialidad de la obra está planteada utilizando materiales nobles. El hormigón visto, la piedra y el revestimiento texturado, conforman una paleta natural que se vincula con la arboleda existente. Los espacios exteriores combinarán caminos vehiculares de piedra suelta y accesos a las viviendas en madera dura.



CASA N-R
VIVIENDA INDIVIDUAL
Témperley - Pcia. Bs. As.
obra terminada



DESCRIPCION
FUNCION: El motivo de esta intervención, fue la ampliación de una pequeña vivienda, que contaba con un lote libre de generosas dimensiones. El programa de necesidades de la ampliación abarcó un espacio destinado a comedor, y toda el área privada de la casa compuesta por tres dormitorios, un baño y un estar íntimo. Para la vivienda original, se decidió mantener las funciones de cochera, estar, cocina, baño y lavadero; y transformar el único dormitorio en estudio.
FORMA: El planteo del proyecto consistió en disponer el comedor en sentido transversal, a continuación de la cocina existente integrando ambos espacios. A continuación de éste y en sentido longitudinal, se plantearon las habitaciones; separando la del matrimonio del sector de habitaciones de los hijos por medio del estar íntimo. La ampliación se recostó sobre una de las medianeras, dejando un patio-jardín lateral que libera las visuales desde el comedor hacia la totalidad del terreno.
MATERIA: Para la materialización de la obra se eligió trabajar con doble pared de bloques de cemento con ambas caras a la vista como material principal, complementada con paredes de ladrillo común en los paños revocados. La mampostería cumple además la función de estructura portante para apoyo de la cubierta metálica. En el interior, el piso de cerámica rústica en habitaciones, comedor, cocina y estar; actúa como elemento integrador.



CASA CHH
VIVIENDA INDIVIDUAL
Témperley - Pcia. Bs. As.
proyecto






DESCRIPCION
FUNCION: Se plantearon dos condiciones; la necesidad detectada por el estudio de optimizar el uso del jardín ubicado al frente de la vivienda otorgándole privacidad y la incorporación de una piscina a solicitud del comitente.
FORMA: Se trabajó para dar respuesta a las necesidades mencionadas, con tres elementos: 1- un cerramiento en el frente de la vivienda conformado por las carpinterías netamente funcionales y el conjunto muro-losa de caracter plástico, trabajado como un contrapunto entre curvas (muro) y rectas (losa) 2- una pérgola que asoma sobre la vereda y nos conduce hasta el acceso a la vivienda, y que “atraviesa” la misma reapareciendo en el patio posterior y rematando en el sector de parrilla y piscina. 3- por último la piscina antes mencionada, para uso principal de los niños de la familia.
MATERIA: Toda la propuesta se trabajó con materiales nobles; ladrillo, hormigón visto y carpintería metáliuca en el ecrramiento de frente; perfilería de hierro y WPC en la pérgola; y hormigón armado con revestimiento contínuo de cuarzo más piso atérmico en listones para la piscina y el solarium.


